Lot 162 | Fairfield Home Model
New Home SOLD in Savannah Hills Subdivision, O’Fallon, IL 62269
This house is our Fairfield Home Model and is completed on Savannah Hills Lot #162 in O’Fallon, Illinois.
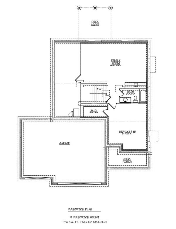
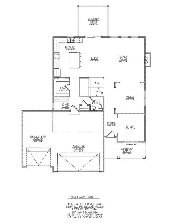
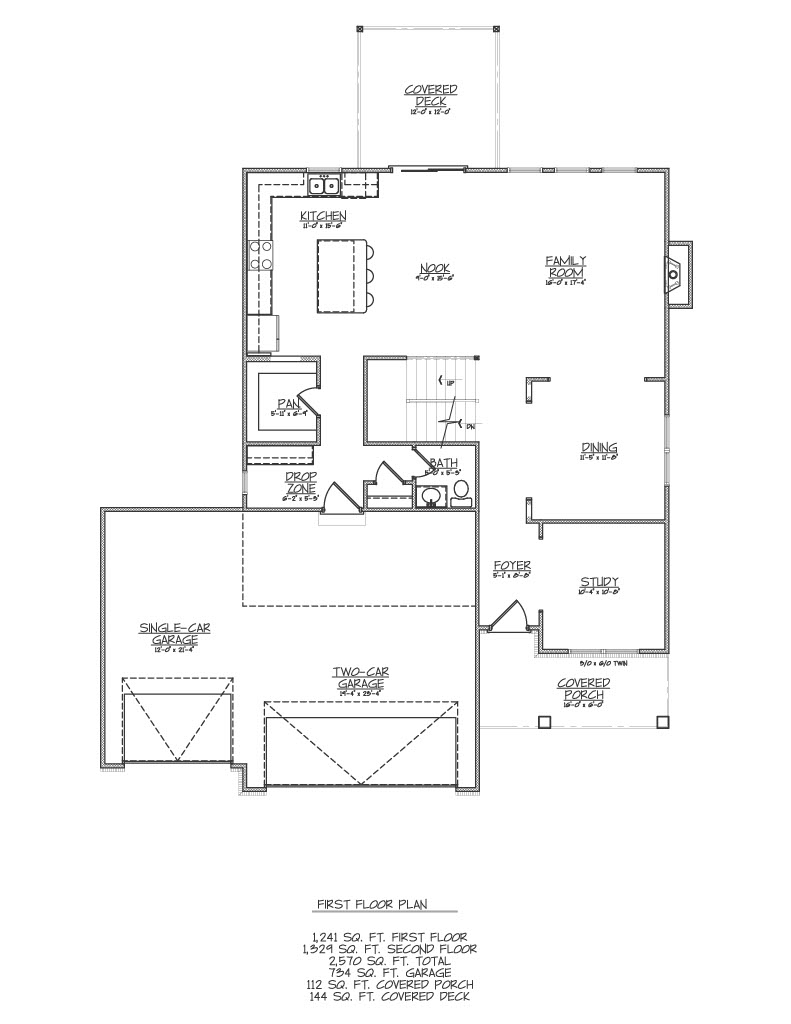
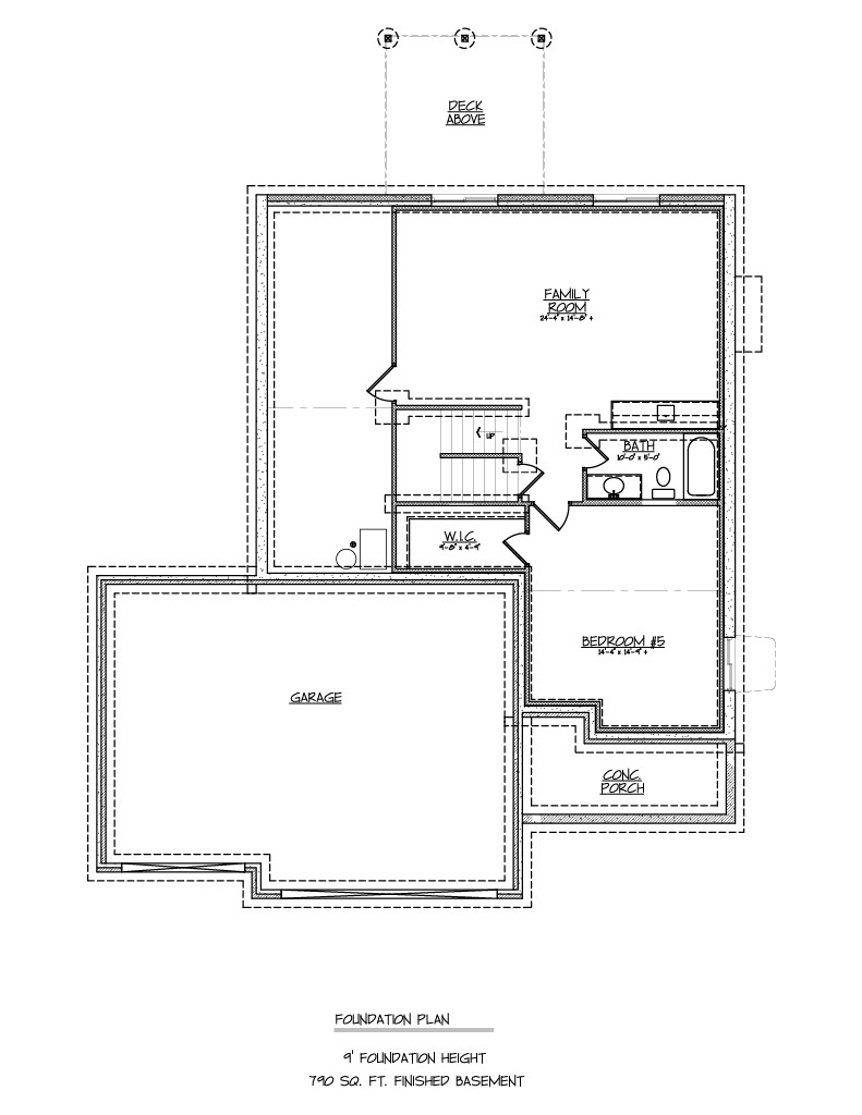
Our Fairfield home model is two stories and 2570 square feet (785 sq. ft. finished basement). It features 5 bedrooms, 3.5 bathrooms, a 3-car garage, and an open, modern living space on the first floor, with 4 bedrooms located on the second floor and one in the basement. The basement features a large recreational area and a wet bar to suit any large family, or it is perfect for entertaining friends and family.
This model is still available. Contact us today to learn how H&L Builders can help you create your dream home!

