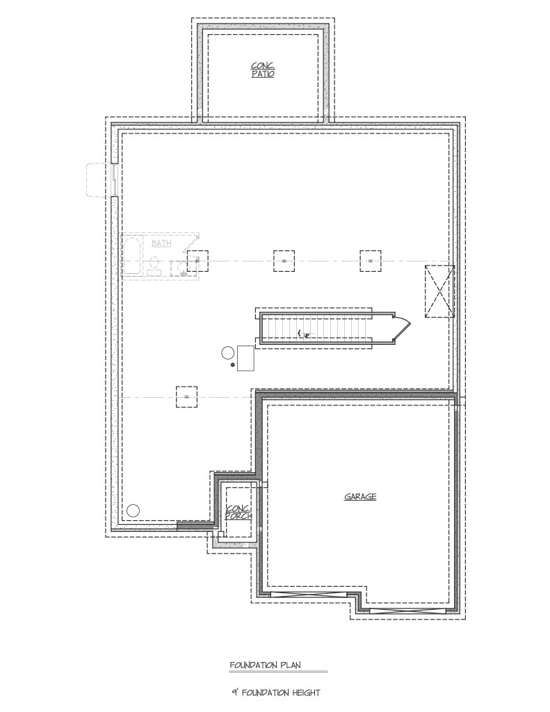
Patio Home Lot 6
New Home for Sale in the Patio Homes of Far Oaks, Caseyville, IL
This home is available for purchase and is currently under construction.
Settled within the gated Patio Homes community in Far Oaks is one of our newest home models. This 2-bedroom, 2-bathroom home is perfect for the family looking to downsize or a new family wanting to grow into a home. Some of the features this home includes are a screened-in porch, a large tiled shower, vaulted ceilings in the living room/kitchen, and an oversized garage.
If you act now, you may have the opportunity to select exterior finishes and make personalized customizations and upgrades.

